Kuchnia Nikolatesla
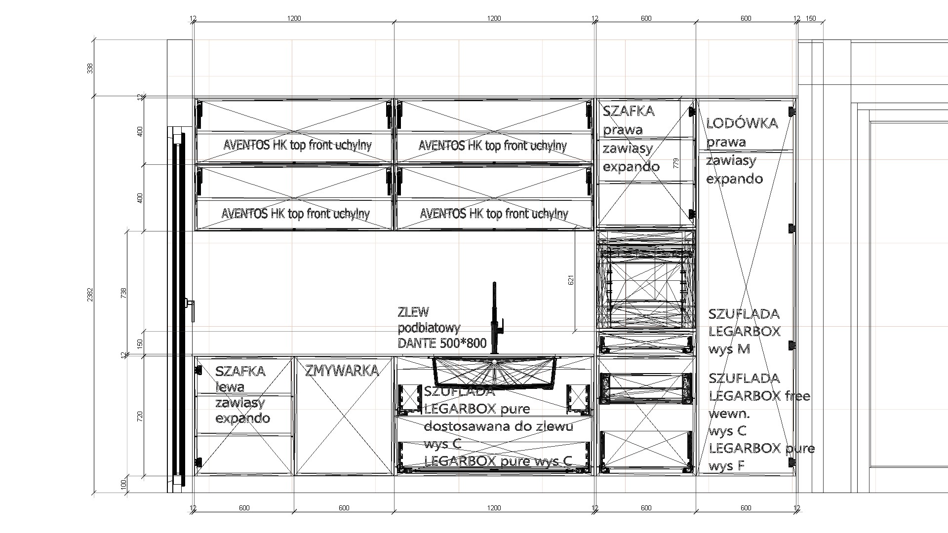
Projekt kuchni z wyspą, zastosowano płytę Nikolatesla z tylnym wyciągiem.Zlewozmywak podwieszany z uwzględnieniem szuflady dostosowanej do wymiru zlewu.Projekt uwzględnia systemy szuflad Legarbox i szafek uchylnych Aventos HK z Dynalogu Blum. W projekcie otrzymujesz;-wizualizacje 2D i 3D-dobór frontów z kolorystyką-zwymiarowane rzuty-pełną liste zakupową-przygotowany projekt z półkami i szufladami z dynalogu Blum; -szczegóły rozwiązania -wykaz artykułów -planowanie z konstrukcją -rozkroje formatek potrzebnych do zbudowania mebla -wymiary montażowe -instrukcje montażu dla stolarzy Tak przygotowany projekt pozwoli na uniknięcie błędów w procesie projektowania z uwzględnieniem funkcjonalnym kuchni. To nie tylko wizualizacja w procesie wykonawczym dla stolarzy ale gwarancja że projekt jest wiernym odzwieciedleniem wizji odbiorcy.
Strona korzysta z plików cookies. Możesz określić warunki przechowywania lub dostępu do plików cookies w Twojej przeglądarce. Akceptuję politykę prywatności.